Про ізотерми
Чому одні вікна «плачуть», а інші - ні? Все дуже просто. Для розуміння потрібно знати дві величини: точку роси і температуру внутрішньої поверхні вікна. Якщо температура поверхні вікна менша від значення точки роси, на вікні буде «роса».
Точка роси – температура поверхні, при якій на цій поверхні утворюється конденсат. Важливо нагадати, що точка роси залежить від вологості та температури повітря. Наприклад, при температурі повітря 200С та вологості 55% точка роси – 10.70С. Це означає, що всі предмети з температурою нижче 10.70С вкриються конденсатом.
Точка роси.

На точку роси ми можемо впливати, змінюючи температуру та вологість у приміщенні.
Як же вплинути на температуру поверхні вікна? Зрозуміло, що ця величина залежить від температури повітря на вулиці а, також, температури повітря в приміщенні. На зовнішню температуру ми, нажаль, впливу не маємо. Інша справа з внутрішньою, яку ми можемо змінити. Робити це потрібно обережно. Адже з таблиці видно, що збільшення температури в приміщенні крім збільшення витрат на опалення, веде до збільшення точки роси, а отже конденсат з’явиться скоріше.
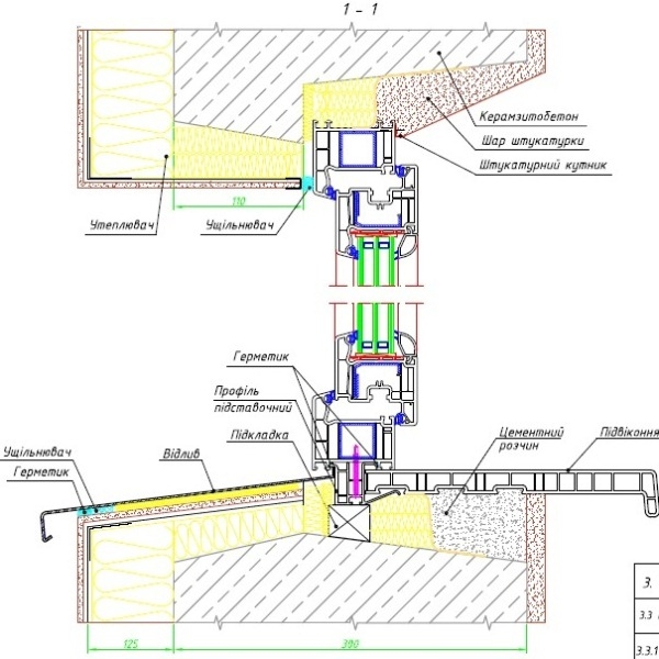
Приклад теплого монтажу вікна з утепленням фасаду

Провівши складні теплотехнічні розрахунки, ми прийшли до наступних висновків:
- Температура поверхні вікна збільшується зі збільшенням монтажної ширини профілю. Тобто у систем Віндзор 58 температура буде найнижчою, а у Віндзор 90 – найбільшою.
- Рекомендується утеплення фасадів, або, принаймні, відкосів. При однакових вікнах утепленні фасадів температура в зоні підвіконня зростає на 2,30С у порівнянні з заміною вікон без утеплення фасадів.
- Рекомендується так званий теплий монтаж, використовуючи паро- та гідроізоляційні стрічки.
(067)
(050)
(093)
